affittato

2 LOCALI RISTRUTTURATO E ARREDATO
Via Pietro Andrea Saccardo 37 Milano

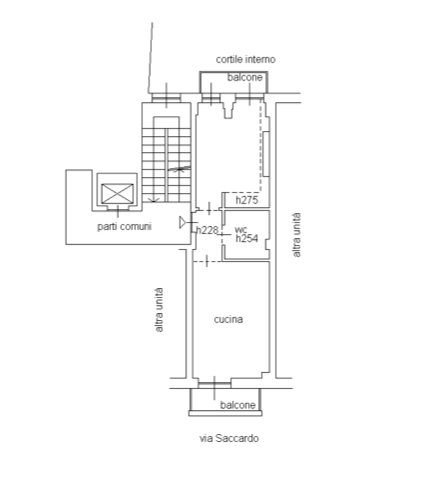
Via Saccardo 37, Living Milano Immobiliare propone in locazione un appartamento di due locali completamente ristrutturato a nuovo e mai abitato di (50 mq circa) posto al secondo piano con ascensore di un Palazzo Signorile degli anni ’50.

  • DISPOSIZIONE AMBIENTI

L’immobile è composto da ingresso, soggiorno con cucina a vista e balcone con affaccio esterno, bagno e camera da letto matrimoniale con balcone sull’interno dello stabile.

  • CARATTERISTICHE

L’appartamento si presenta completamente ristrutturato e mai abitato con infissi in doppio vetro in ogni ambiente, aria condizionata e porta blindata.

Viene consegnato completamente arredato.

La doppia esposizione garantisce estrema luminosità e tranquillità in tutti gli ambienti.

  • TERMINI CONTRATTO

Il canone mensile richiesto è di € 1.100,00 più 200,00 di spese condominiali (incluso riscaldamento)

CONTRATTO TRANSITORIO

Libero subito.

  • LA ZONA

nelle immediate vicinanze sono presenti e comodamente raggiungibili tutti i servizi di prima necessità quali asili, scuole, alimentari e negozi, a 10 minuti a piedi dalla MM2 Lambrate

  • AGENZIA IMMOBILIARE

Living Milano Immobiliare è una società che da oltre dieci anni si è affermata nel settore dell’intermediazione immobiliare milanese avvalendosi esclusivamente di professionisti altamente qualificati.

La nostra cura per i dettagli ci permetterà di valorizzare al meglio la vostra proprietà con servizi fotografici professionali, planimetrie in 3d e virtual tour. Se il tuo immobile è da ristrutturare verrà da noi valorizzato al meglio con rendering esclusivi.

Contattaci per una perizia gratuita e senza impegno del tuo immobile

Prezzo: € 1.100
affittato

Affitto
ristrutturato
A4
Appartamento
1
C 90,92kWh/m²
Milano
1
Lambrate
€ 200
2
centralizzato
50 mq
si
2
Living Milano fiera

Caratteristiche

  • Aria condizionata
  • Arredata
  • Ascensore
  • Balcone
  • Parquet
il browser no supporta Javascript o è disabilitato.
Top
Scrivici via Whatsapp