venduto

4 LOCALI PIANO ALTO CON BALCONATA
Viale Teodorico 26 Milano

Viale Teodorico 26, Living Milano Immobiliare propone in vendita con incarico in esclusiva un appartamento di quattro locali (106 mq circa) posto al quinto piano di uno stabile Signorile del 1960 con ascensore e servizio di portineria full-time

 

  • DISPOSIZIONE ATTUALE DEGLI AMBIENTI

l’immobile è attualmente composto da ampio disimpegno d’ingresso, soggiorno doppio con accesso diretto all’ampia balconata, cucina, camera matrimoniale 1 con accesso diretto alla balconata, bagno 1 finestrato, camera matrimoniale 2 e bagno 2 con doccia

 

 

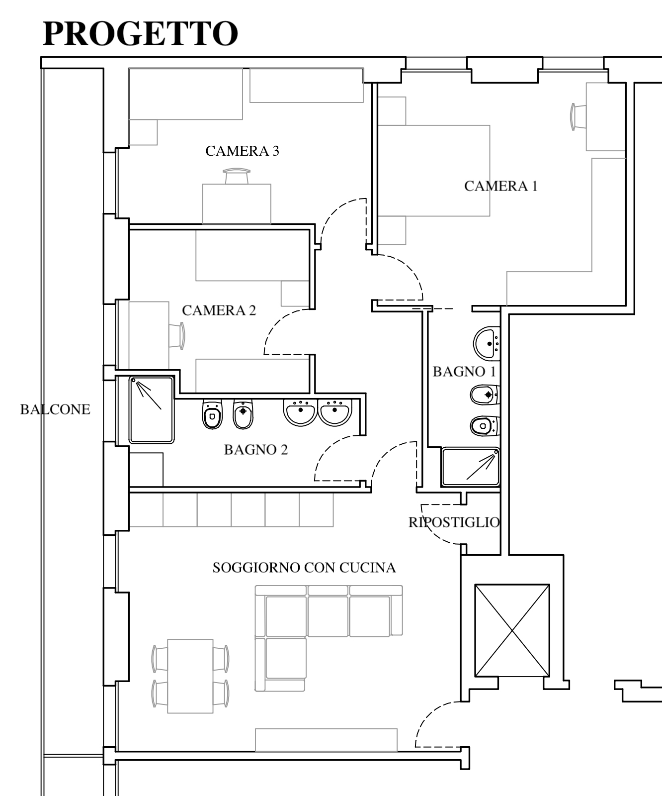
  • PROGETTO (VEDI SEZIONE “PLANIMETRIE”)

il progetto prevede la suddivisione degli spazi interni (vedi progetto pubblicato) in soggiorno doppio con cucina a vista ed accesso diretto alla balconata, camera padronale 1 con bagno en-suite con doccia, camera da letto 2, bagno 2 finestrato e camera da letto 3 con accesso alla balconata

 

  • PERTINENZE

completa la proprietà la cantina
possibilità acquisto di un box all’interno dello stabile ad € 55.000,00

 

  • CARATTERISTICHE

l’immobile si presenta da ristrutturare, nonostante la suddivisione degli spazi interni risulta essere estremamente razionale e tipica di quegli anni, molteplici sono le possibilità di trasformazione interna.
L’ esposizione doppia angolare ed il piano alto garantiscono estrema luminosità e tranquillità in tutti gli ambienti.
Le immagini inserite (rendering) ed il progetto sono a scopo illustrativo e non costituiscono elemento contrattuale.
L’immobile è da ristrutturare e verrà venduto allo stato attuale delle fotografie pubblicate

 

 

  • LA ZONA

nelle immediate vicinanze sono presenti e comodamente raggiungibili tutti i servizi di prima necessità quali asili, scuole, alimentari e negozi.
A pochi minuti a piedi dalla MM5 Lilla Portello e facilmente raggiungibile l’uscita della tangenziale ovest.
Ci troviamo nel quartiere tra Parco Vittoria, Portello, City Life e Fiera Milano City.
Piazza Portello risulta essere un’arteria importante della città di Milano. Infatti, la piccola città-shopping può contare, oltre che su tre grandi supermercati, su più di 50 esercizi commerciali. Bar, ristoranti, abbigliamento e accessori per la casa: avrai tutto quello che ti serve a portata di mano.
Tra le tante zone di Milano che negli ultimi anni hanno subito un processo di trasformazione tale da renderle irriconoscibili rispetto a com’erano anche solo a inizio millennio, quella del Portello è una delle più notevoli.
Una delle novità più visibili è il Parco del Portello, progettato dall’americano Charles Jencks e dal tedesco Andreas Kipar, considerato l’iniziatore dell’architettura di paesaggio in Italia, sviluppato attorno a tre collinette pensate in continuità col Monte Stella a San Siro e giudicato da alcuni come la High Line milanese
City Life diventa il simbolo del prestigio milanese: tante celebrities scelgono di risiedere nelle sue abitazioni di lusso.
Ciò che salta subito all’occhio, passeggiando nel quartiere City Life di Milano, sono certamente le Tre Torri: tre grattacieli che definiscono il business district dell’area, ormai soprannominati amichevolmente il Curvo, il Dritto e lo Storto, aggettivi che già suggeriscono le loro particolari forme.
Piazza Tre Torri, la vasta area pedonale ideata da One Works, è il cuore pulsante del quartiere City Life di Milano ed è anche la porta di accesso al nuovo centro commerciale CityLife Shopping District

Prezzo: € 580.000
venduto

Vendita
da ristrutturare
V12
Appartamento
3
F 154,41kWh/m²
Milano
2
Sempione - Fiera Milano City
€ 218
4
centralizzato
106 mq
si
5
Living Milano fiera

Caratteristiche

  • Ascensore
  • Balcone
  • Box
  • Cantina
  • Da ristrutturare
  • Doppia esposizione
  • Esposizione angolare
  • Giardino condominiale
  • Piano alto
  • Portineria
il browser no supporta Javascript o è disabilitato.
Top
Scrivici via Whatsapp