affittato

ATTICO E SUPERATTICO RISTRUTTURATO CON GIARDINO PENSILE
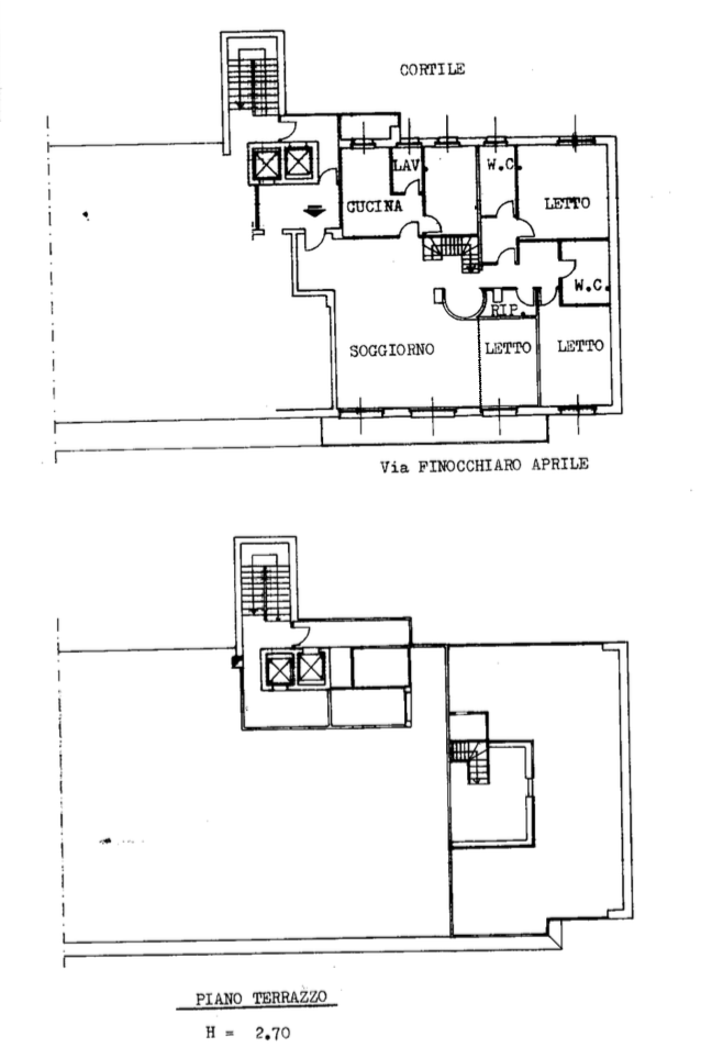
Via Camillo Finocchiaro Aprile 5 Milano

Via Camillo Finocchiaro Aprile 5, Living Milano Immobiliare propone in locazione con incarico in esclusiva un plurilocale disposto su due livelli (200 mq circa) posto al quinto e sesto piano di un Palazzo degli anni ’75 in ottimo contesto, con ascensore e portineria full-time.

 

  • DISPOSIZIONE AMBIENTI

L’immobile è composto da un ingresso, soggiorno doppio con accesso alla balconata sulla Via Finocchiaro Aprile, cucina abitabile con balcone, tre camere da letto, stanza di servizio, lavanderia e doppi servizi. Al piano superiore troviamo una stanza completa di camino funzionante e il meraviglioso giardino pensile. L’immobile dispone in ogni suo ambiente di aria condizionata e riscaldamento centralizzato.

 

  • CARATTERISTICHE

l’appartamento si presenta ristrutturato e parzialmente arredato, infissi in doppio vetro in ogni ambiente, aria condizionata, porta blindata. La tripla esposizione, i numerosi punti luce, la disposizione degli ambienti e il piano alto offrono luminosità, tranquillità, comfort e prestigio nell’appartamento rendendolo unico nel suo genere.

Possibilità box all’interno dello stabile.

 

 

  • TERMINI CONTRATTO

il canone mensile richiesto è di € 3.900,00 più 1.000,00 di spese condominiali (incluso riscaldamento) e € 300,00 per locazione box auto.

CONTRATTO 4+4

Disponibilità immediata.

 

  • LA ZONA

nelle immediate vicinanze sono presenti e comodamente raggiungibili tutti i servizi di prima necessità quali asili, scuole, alimentari e negozi.

A 8 minuti a piedi dalla MM1 P.ta Venezia e a 4 minuti a piedi dalla MM3 Gialla Repubblica.

A pochi passi dai Giardini Indro Montanelli e dal centro storico.

 

  • AGENZIA IMMOBILIARE

Living Milano Immobiliare è una società che da oltre dieci anni si è affermata nel settore dell’intermediazione immobiliare milanese avvalendosi esclusivamente di professionisti altamente qualificati.

La nostra cura per i dettagli ci permetterà di valorizzare al meglio la vostra proprietà con servizi fotografici professionali, planimetrie in 3d e virtual tour. Se il tuo immobile è da ristrutturare verrà da noi valorizzato al meglio con rendering esclusivi.

Contattaci per una perizia gratuita e senza impegno del tuo immobile

Prezzo: € 3.900
affittato

Affitto
ristrutturato
A5
Appartamento
3
E 100,03kWh/m²
Milano
3
Repubblica
€ 1.000
5
centralizzato
200 mq
si
5
Living Milano fiamma

Caratteristiche

  • Aria condizionata
  • Arredata
  • Ascensore
  • Balconi
  • Box
  • Giardino privato
  • Infissi doppi
  • Parquet
  • Piano alto
  • Portineria
  • Terrazzo
  • Tripla esposizione
  • Ultimo piano
il browser no supporta Javascript o è disabilitato.
Top
Scrivici via Whatsapp